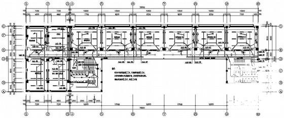
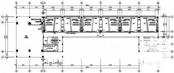
5层中学综合教学楼电气CAD施工图纸
- 发布时间:2022-11-16
- 评论次数:0
- 浏览次数:0
- 文件大小:0.7 MB
- 收藏次数:0
- 
								文件名称: 附件-995856690577075865079.rar 附件-995856690577075865079.rar
								相关下载
							
						- 中学教学楼综合楼施工CAD图纸
- 5层中学综合教学楼电气施工图纸
- 3层中学教学楼电气施工图纸(综合布线系统)
- 三级负荷中学教学楼电气施工图纸(综合布线系统)
- 中学6层教学楼电气CAD施工图纸(综合布线系统)
- 中学7层综合教学楼消防电气CAD施工图纸(火灾自动报警)
- 中学5层教学楼电气CAD图纸(综合布线系统)
- 8层中学教学楼电气施工CAD图纸
- 中学教学楼电气CAD施工图纸
- 5层教学楼中学综合教学楼(水暖)_CAD
- 中学5层教学楼电气CAD图纸
- 中学4层教学楼电气CAD图纸
- 中学4层教学楼电气CAD图纸
- 中学教学楼强弱电气CAD图纸
- 中学教学楼电气设计图纸
- 中学教学楼电气设计图纸.dwg
- 中学教学楼
- 中学教学楼电气设计.dwg
- 中学教学楼电气设计.dwg
- 学院综合教学楼电气图纸
全部评论
						
							评论网友评论仅友表达个人看法,并不表明本站同意其观点,不得发布违反法律法规的内容!
						
						
 
	              	 
	              	 
	              	