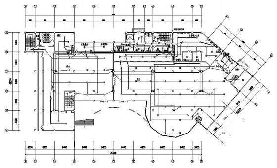
3层中学餐厅电气设计CAD图纸(高15米)(应急照明系统)
- 发布时间:2022-11-16
- 评论次数:0
- 浏览次数:0
- 文件大小:0.72 MB
- 收藏次数:0
- 
								文件名称: 附件-995856767958857555008.rar 附件-995856767958857555008.rar
								相关下载
							
						- 3层实验中学餐厅电气设计图纸(高10米)(消防联动控制系统)
- 3层中学餐厅电气设计CAD图纸
- 2层实验中学餐厅电气设计CAD图纸(消防联动控制系统)
- 中学餐厅给排水设计图纸
- 中学餐厅结构CAD施工图纸
- 两层实验中学餐厅电气CAD施工图纸(联动控制系统)
- 商业广场应急照明系统图纸
- 医院配电系统设计CAD图纸(应急照明)
- 公寓消防应急照明系统电气施工图纸,含电气设计说明.dwg
- 2层餐厅电气设计CAD图纸
- 宿舍与餐厅电气设计CAD施工图纸
- 3层餐厅照明、插座电气设计CAD图纸
- 学生餐厅电气设计图纸.dwg
- 公司餐厅电气设计图纸.dwg
- 餐厅厨房电气设计CAD图纸.dwg
- 夜总会及餐厅装修电气设计.dwg
- 风景区餐厅电气设计.dwg
- 高供高计箱变系统CAD图纸
- 大学1层餐厅建筑施工CAD图纸(高7.2米)
- 中学2层框架结构食堂强电CAD施工图纸(高9.6米)(防雷接地系统)
全部评论
						
							评论网友评论仅友表达个人看法,并不表明本站同意其观点,不得发布违反法律法规的内容!
						
						
 
	              	 
	              	 
	              	