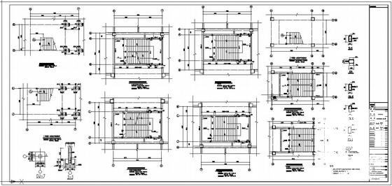
6层学院学生宿舍框架结构设计CAD图纸(平面布置图)
- 发布时间:2022-11-16
- 评论次数:0
- 浏览次数:0
- 文件大小:1.54 MB
- 收藏次数:0
- 
								文件名称: 附件-995877977676095098878.rar 附件-995877977676095098878.rar
								相关下载
							
						- 学院新城基坑围护图纸平面布置图
- 6层学院学生宿舍框架结构设计CAD施工图纸
- 框架结构学生宿舍施工图纸2021+50Pcad平面布置图
- 6层学院学生宿舍楼电气CAD施工图纸(框架结构)
- 框架结构学院教师及留学生公寓结构设计CAD施工图纸(平面布置图)
- 4层框架职业技术学院综合楼结构设计方案CAD图纸(平面布置图)
- 学院无菌室送风口平面布置图(6页图纸).dwg
- 师范学院给水加压泵站设计cad图纸和泵房平面布置图
- 国内5层学院学生宿舍楼给排水CAD图纸(消火栓系统)
- 国内5层学院学生宿舍楼给排水CAD施工图纸
- 一套学院学生宿舍给排水CAD施工图纸.dwg
- 学院新城基坑围护设计图和基坑平面布置图
- 学生宿舍加装空调电力扩容工程电气施工图纸cad平面布置图
- 4层框架结构大学学生宿舍楼结构CAD施工图纸(平面布置图)
- 6层框架结构学生宿舍、食堂结构施工图纸27Pcad平面布置图
- 框架车间结构设计方案CAD图纸(平面布置图)
- 3层框架餐厅结构设计图纸cad平面布置图
- 6层框架结构学生宿舍结构设计施工图纸
- 框架结构车库结构设计施工图平面布置图
- 校学生宿舍框架结构设计.dwg
全部评论
						
							评论网友评论仅友表达个人看法,并不表明本站同意其观点,不得发布违反法律法规的内容!
						
						
 
	              	 
	              	 
	              	