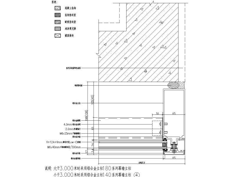
3层体育馆玻璃幕墙系统深化设计CAD施工图纸(节点图纸超详细)
- 发布时间:2022-11-13
- 评论次数:0
- 浏览次数:0
- 文件大小:6.79 MB
- 收藏次数:0
- 
								文件名称: 附件-995877595687975066758.rar 附件-995877595687975066758.rar
								相关下载
							
						- 体育馆玻璃幕墙系统深化设计CAD施工大样图(节点大样图超详细)
- 框架楼柱深化设计节点构造详细CAD图纸
- 体育馆钢结构深化设计图纸
- 大学体育馆钢结构深化设计
- 体育馆桁架节点详细设计CAD图纸
- 玻璃幕墙避雷系统节点构造详细设计CAD图纸
- 超深检查井节点构造详细设计CAD图纸
- 隐框玻璃幕墙节点详细设计CAD图纸
- 点式玻璃幕墙节点详细设计CAD图纸
- 玻璃幕墙封顶节点构造详细设计CAD图纸
- 玻璃幕墙节点详细设计CAD图纸
- 明框玻璃幕墙节点详细设计CAD图纸
- 玻璃幕墙节点详细设计CAD图纸
- 玻璃幕墙屋面节点详细设计CAD图纸
- 铝塑板及玻璃幕墙节点详细设计CAD图纸
- 玻璃幕墙节点构造详细设计CAD图纸
- 玻璃幕墙结构节点构造详细设计CAD图纸
- 玻璃幕墙节点构造详细设计CAD图纸
- 玻璃幕墙节点构造详细设计CAD图纸
- 隐框玻璃幕墙节点详细设计CAD图纸
全部评论
						
							评论网友评论仅友表达个人看法,并不表明本站同意其观点,不得发布违反法律法规的内容!
						
						
 
	              	 
	              	 
	              	 
	              	 
	              	