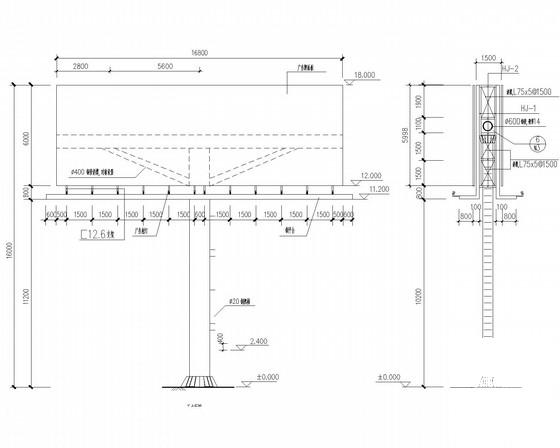
16米高独立基础双面广告牌结构CAD施工图纸
- 发布时间:2022-11-13
- 评论次数:0
- 浏览次数:0
- 文件大小:0.18 MB
- 收藏次数:0
-
文件名称:
附件-995878500997755075707.zip
相关下载
- 18米高独立双面广告牌结构CAD施工图纸
- 双面广告牌结构施工图纸(独立基础,共2张)
- 6度抗震双面广告牌结构CAD施工图纸(独立基础)
- 双面广告牌钢桁架结构CAD施工图纸(独立基础)
- 双面高耸立柱广告牌结构CAD施工图纸(独立基础)
- 18米高独立双面广告牌结构CAD施工图纸(钢结构桁架)
- 30米高独立基础广告牌结构CAD施工图纸
- 16米高双面广告牌结构CAD施工图纸
- 单立柱广告牌结构CAD施工图纸(16米高双面型户外广告牌)
- 单立柱广告牌结构CAD施工图纸(16米高双面型户外广告牌)
- 七度抗震单立柱双面型户外广告牌结构CAD施工图纸(独立基础)
- 双面广告牌结构CAD施工大样图(独立柱)
- CAD户外双面独立柱广告牌钢结构设计说明
- 户外双面独立柱广告牌钢结构设计说明.dwg
- 双面广告牌结构CAD施工图纸
- 双面广告牌结构CAD图纸
- 双面高耸立柱广告牌施工图纸
- 双面广告牌结构设计施工图纸(桩基础,共2张)
- 钢结构擎天柱广告牌结构CAD施工图纸(独立基础)
- 钢结构擎天柱广告牌结构CAD施工方案图纸(独立基础)
全部评论
评论网友评论仅友表达个人看法,并不表明本站同意其观点,不得发布违反法律法规的内容!
