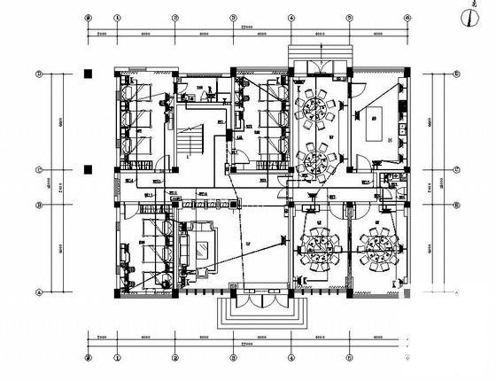
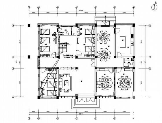
物资仓库3层办公楼电气设计CAD施工图纸
- 发布时间:2022-11-04
- 评论次数:0
- 浏览次数:0
- 文件大小:5.18 MB
- 收藏次数:0
-
文件名称:
附件-995856865588957056577.rar
相关下载
- 物资仓库3层办公楼电气CAD施工图纸
- 2112平米单层物资仓库电气施工图纸
- 框架结构物资仓库结构施工方案图
- 物资仓库及下料厂房施工组织设计
- 5层医疗物资仓库电气施工图纸平面图及系统图
- 应急救灾医疗物资储备仓库暖通施工图纸平面图
- 18米跨门式刚架物资仓库结构CAD施工图纸(6度抗震)
- 物资仓库六级人防通风设计CAD施工方案图纸
- 物资仓库电气CAD施工图纸(TN-C-S)
- 18米跨门式刚架物资仓库结构CAD施工图纸
- 5层医疗物资储备仓库工程建筑施工图纸平面图及立面图
- 特种车库、物资库
- 仓库电气设计计算书.doc
- 5层仓库电气设计CAD施工图纸
- 仓库消防电气设计CAD施工图纸(4张图纸)(dwg)
- 医药仓库配电室电气设计施工图纸
- 2145平米油料原料仓库电气设计CAD施工图纸(dwg)
- 烟花爆竹储存仓库电气设计CAD施工图纸
- 生产临建仓库电气CAD施工图纸(电气设计说明)
- 7898平米仓库电气设计CAD施工图纸.dwg
全部评论
评论网友评论仅友表达个人看法,并不表明本站同意其观点,不得发布违反法律法规的内容!
