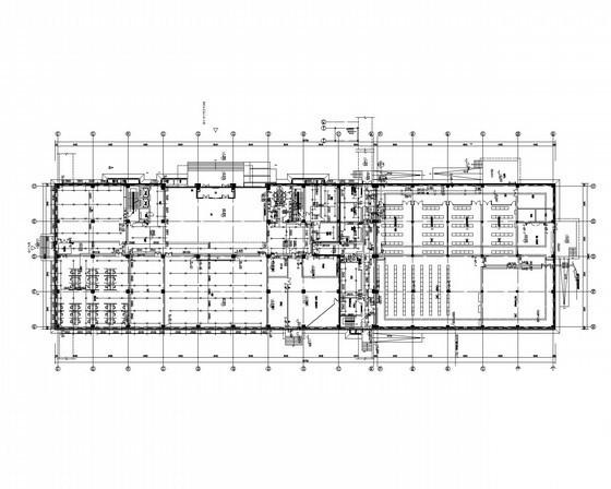
数据中心综合楼给排水CAD施工图纸(平面布置图)
- 发布时间:2022-10-28
- 评论次数:0
- 浏览次数:0
- 文件大小:4.07 MB
- 收藏次数:0
- 
								文件名称: 附件-995860958695757986798.rar 附件-995860958695757986798.rar
								相关下载
							
						- 3层数据中心综合楼给排水CAD施工图纸
- 数据中心给排水施工图纸
- 24层综合楼给排水CAD施工图纸(多图纸)(泵房平面布置图)
- 景观给排水平面布置图纸
- 综合楼给排水消防平面CAD图纸
- 研发数据中心给排水施工大样图.dwg
- 多层综合楼给排水CAD平面图
- 5层框架综合楼结构CAD施工图纸(平面布置图)
- 培训中心综合楼计算书及图纸(施工平面布置图)
- 国内综合楼钢筋工程施工方案cad平面布置图
- 邮政综合楼按摩池图纸平面布置图及剖面图
- 数据中心机房电气CAD施工图纸
- 游泳池施工详图纸给排水平面布置图
- 泵房给排水CAD施工图纸(平面布置图)
- 6层综合大楼给排水CAD施工图纸(泵房平面布置图)
- 大学食堂改造维修项目给排水施工图纸cad平面布置图
- 3层医院妇幼综合楼保健综合楼给排水施工图纸平面图
- 多层框架人民医院保健综合楼结构平面布置图
- 绿化升级改造工程给排水施工图cad平面布置图
- 一类高层综合楼给排水施工图纸cad平面图
全部评论
						
							评论网友评论仅友表达个人看法,并不表明本站同意其观点,不得发布违反法律法规的内容!
						
						
 
	              	 
	              	 
	              	 
	              	