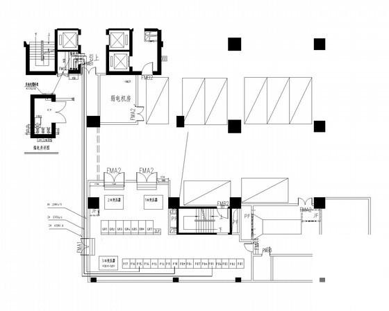
10KV配电房电气CAD施工图纸(变压器基础图)
- 发布时间:2022-10-28
- 评论次数:0
- 浏览次数:0
- 文件大小:8.19 MB
- 收藏次数:0
- 
								文件名称: 附件-995856507785558608580.rar 附件-995856507785558608580.rar
								相关下载
							
						- 10KV配电房电气CAD施工大样图(最新编制)
- 10KV变压器安装CAD图纸
- 10KV变压器室典型布置方案
- 10KV变压器电气设计图纸.dwg
- 10kv高速公路服务区配电房全套电气工艺
- 变压器安装基础CAD图纸
- 2层10KV变电站配电房加固设计施工图纸
- 主变压器基础施工CAD图纸
- 变压器、配电屏基础图纸平面图及剖面图
- 10KV变压器高低压侧电缆安装CAD图纸
- 10KV变压器保护控制回路原理CAD图纸
- 变电所10KV进线、计量柜、变压器柜原理CAD图纸
- 6~10KV变压器二次原理CAD图纸
- 6~10KV变压器二次原理CAD图纸
- 配电房及设备基础布置电气设计CAD图纸
- 五星酒店10KV电源进线变压器电施-动力用房电施图
- 变压器基础节点构造详图纸cad
- 主变压器基础施工节点构造详图纸平面布置图及剖面图
- 宾馆变配电房电气施工图纸
- 医院变配电房电气CAD施工图纸
全部评论
						
							评论网友评论仅友表达个人看法,并不表明本站同意其观点,不得发布违反法律法规的内容!
						
						
 
	              	 
	              	 
	              	