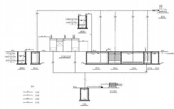
医药科技园污水处理站工艺图纸(格栅筛网,沉淀,过滤)
- 发布时间:2022-10-28
- 评论次数:0
- 浏览次数:0
- 文件大小:7.22 MB
- 收藏次数:0
-
文件名称:
附件-995860888886597656969.rar
相关下载
- 污水处理厂A2O工艺CAD图纸(格栅筛网,中和,沉淀)(污泥浓缩池)
- 医药科技园污水处理站工艺施工图纸
- 3万吨每天污水处理厂初步设计(格栅筛网,沉淀)
- 水厂反应池沉淀池过滤池安装工艺CAD大样图
- 污水处理厂细格栅及沉淀池电气CAD图纸
- 水厂反应池沉淀池过滤池安装工艺图(10页大样图).dwg
- 污水处理厂细格栅及沉淀池电气设计施工图纸
- 污水处理站工艺平面及工艺流程CAD图纸
- 沉淀池、氧化池、过滤池建筑CAD施工图纸
- 淀粉厂污水处理站工艺全套施工图纸
- 镇污水处理站工艺CAD施工方案图纸
- 污水处理站工艺流程施工图纸(100立方米)
- 污水处理站BAF工艺CAD施工图纸
- 折板絮凝、平流沉淀池工艺CAD图纸
- 絮凝反应沉淀池工艺布置CAD图纸
- 制冷站工艺流程CAD图纸
- 卢龙热力站工艺设计CAD图纸
- 游泳池过滤工艺流程施工图纸平面布置图
- 污水处理厂工程V型过滤水池CAD施工图纸
- 污水处理厂工程V型过滤水池结构CAD图纸
全部评论
评论网友评论仅友表达个人看法,并不表明本站同意其观点,不得发布违反法律法规的内容!
