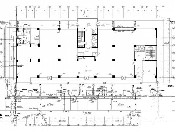
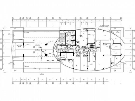
21层领馆公寓给排水CAD施工图纸
- 发布时间:2022-10-18
- 评论次数:0
- 浏览次数:0
- 文件大小:4.05 MB
- 收藏次数:0
- 
								文件名称: 附件-995860580977970598008.rar 附件-995860580977970598008.rar
								相关下载
							
						- 21层领馆公寓给排水CAD施工图纸
- 银领中心项目
- 高级公寓给排水设计施工说明
- 国嘉美领居全套环境设计CAD施工图纸.dwg
- 酒店公寓给排水设计CAD图纸
- 遗址博物馆给排水图纸
- 游泳馆给排水图纸
- 大学单身公寓给排水施工图纸
- 公寓建筑给排水全套设计施工图纸
- 宿舍公寓楼给排水施工图纸
- 10层酒店公寓给排水CAD施工图纸
- 5层公寓给排水消防CAD施工图纸
- 研究生公寓给排水CAD施工图纸
- 国内公寓给排水及采暖CAD施工图纸
- 11层公寓给排水CAD施工方案图纸
- 多层公寓给排水CAD施工方案图纸
- 酒店式公寓给排水CAD施工图纸
- 别墅公寓给排水CAD施工方案图纸
- 11层公寓给排水成套CAD施工图纸
- 宿舍公寓楼给排水施工CAD图纸
全部评论
						
							评论网友评论仅友表达个人看法,并不表明本站同意其观点,不得发布违反法律法规的内容!
						
						
 
	              	 
	              	 
	              	