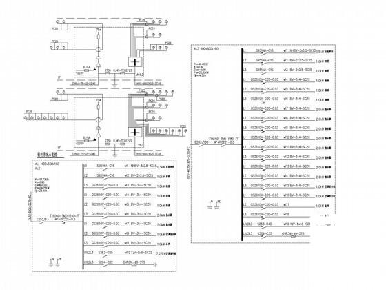
养殖基地宿舍电气CAD施工图纸
- 发布时间:2022-10-17
- 评论次数:0
- 浏览次数:0
- 文件大小:0.57 MB
- 收藏次数:0
-
文件名称:
附件-995856560787665895705.rar
相关下载
- 养殖基地宿舍电气CAD施工图纸
- 单层养殖基地宿舍电气CAD施工图纸(三级负荷)
- 养殖基地宿舍电气CAD施工图纸(钢筋混凝土结构)(TN-C-S)
- 活猪养殖及库房电气施工CAD图纸
- 8层产业基地食堂及员工宿舍电气施工CAD图纸
- 钢铁基地宿舍给排水CAD施工图纸
- 3层综合实践基地生活楼电气设计施工CAD图纸(宿舍、厨房、餐厅、浴室)
- 养殖楼功能区(内含负荷表)
- 养殖场集中库房及配怀舍电气CAD施工大样图
- 生产基地废料库电气施工图纸
- 设备产业基地厂房电气CAD施工图纸
- 海淀永丰基地厂房项目[电气CAD施工图纸]
- 海珍品养殖大棚建筑扩初CAD图纸
- 奶牛养殖厂废水工艺处理CAD图纸
- 高速公路交警基地电气施工方案
- 学生宿舍电气
- 单身宿舍电气
- 职工宿舍电气
- 宿舍楼电气
- 学员宿舍电气施工图纸全套
全部评论
评论网友评论仅友表达个人看法,并不表明本站同意其观点,不得发布违反法律法规的内容!
