3层幼儿园电气CAD施工图纸

  • 建筑类别:文化
  • 建筑高度类型:多层建筑
  • 建筑设计结构形式:钢筋混凝土结构
  • 建筑设计面积:286.16平方米
  • 建筑地上层数:3层
  • 负荷等级:三级
  • 防雷等级:第三类
  • 接地方式:TN-C-S
  • 项目所在地:新疆
  • 强电设计:低压配电,电气照明,建筑物防雷,接地安全
  • 弱电设计:通信系统,有线电视和卫星接收系统

附件详情

  • 1、电气设计说明
  • 2、配电系统图
  • 3、弱电系统图
  • 4、强电平面图
  • 5、动力平面图
  • 6、 照明平面图
  • 7、 弱电平面图
  • 8、 防雷平面图
  • 9、接地平面图
  • 10、应急照明接线图

附件详情

该附件是三层幼儿园全套电气施工图纸,总共21张。
该项目总建筑设计面积:719.29m2,建筑占地面积:286.16m2,建筑总高度:10.570m。功能布局:一层~三层为幼儿园,共三班。底层为音体室、保健室、晨检室,二、三层为活动室、休息室,教师办公室。
该资料包括以下电气系统:照明及电力配电系统;建筑物防雷、防电磁感应及电磁脉冲、等电位连接与共用接地系统;综合布线系统的预埋预留管线设计。

三层动力平面图

一层弱电平面图

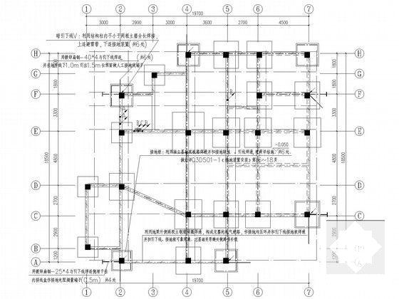
基础接地平面图

配电系统图

以下是附件的其中一部分截图,共5张,您也可以 搜索 更多您想要的资源
  • 3层幼儿园电气CAD施工图纸 - 1
    第 1 张图
  • 3层幼儿园电气CAD施工图纸 - 2
    第 2 张图
  • 3层幼儿园电气CAD施工图纸 - 3
    第 3 张图
  • 3层幼儿园电气CAD施工图纸 - 4
    第 4 张图
  • 3层幼儿园电气CAD施工图纸 - 5
    第 5 张图
以上是部分截图,请下载附件后查看完整高清内容
网站首页  | 
本站所有内容均由网友自主分享,仅供学习和参考,如有侵权内容或者违法行为,请及时联系站长删除。