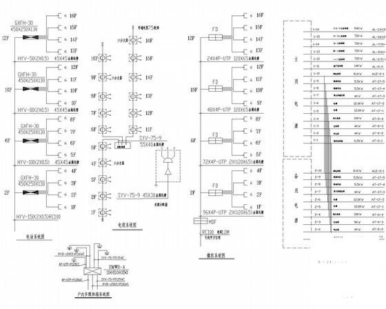
17层小区住宅楼电气设计CAD施工图纸
- 发布时间:2022-10-15
- 评论次数:0
- 浏览次数:0
- 文件大小:1.42 MB
- 收藏次数:0
- 
								文件名称: 附件-995855978989578790967.rar 附件-995855978989578790967.rar
								相关下载
							
						- 小区18层住宅楼电气设计
- 3层小区3+1住宅楼电气设计施工图纸
- 17层小区住宅楼电气设计施工图纸
- 小区6层住宅楼电气设计全套施工图纸
- 小区7层住宅楼电气设计施工图纸
- 高层住宅楼小区地下车库电气设计施工图纸
- 18层住宅楼小区全套电气设计施工图纸
- 小区12层住宅楼电气设计CAD施工图纸
- 小区19层住宅楼建筑电气设计CAD施工图纸
- 小区8层三栋住宅楼电气设计CAD施工图纸
- 二类高层小区住宅楼电气设计CAD施工图纸
- 19层小区住宅楼电气设计CAD施工图纸
- 30层高层小区住宅楼电气设计CAD施工图纸
- 6层住宅楼小区电气设计CAD施工图纸
- 11层小区住宅楼电气设计CAD施工图纸
- 12层小区住宅楼电气设计CAD施工图纸
- 18层小区住宅楼电气设计CAD施工图纸(火灾自动报警)
- 6层小区住宅楼电气设计CAD施工图纸(楼宇对讲系统)
- 18层住宅楼小区电气设计CAD施工图纸(火灾自动报警)
- 多层住宅楼电气设计CAD施工图纸(小区低压配电)
全部评论
						
							评论网友评论仅友表达个人看法,并不表明本站同意其观点,不得发布违反法律法规的内容!
						
						
 
	              	 
	              	 
	              	