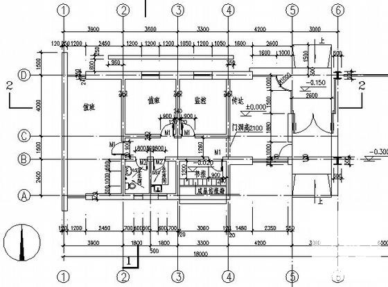
9米高上大附中北大门建筑施工图
- 发布时间:2021-11-29
- 评论次数:0
- 浏览次数:0
- 文件大小:0.81 MB
- 收藏次数:0
- 
								文件名称: 附件-995887755796877558770.rar 附件-995887755796877558770.rar
								相关下载
							
						- 大附中北大门建筑施工图纸
- 深大附中建筑方案文本_CAD
- 上大附中4层电教楼建筑方案设计CAD图纸
- 砖混结构上大附中体育场看台建筑施工CAD图纸
- 单层砖混结构上大附中围墙建筑方案设计图纸,共9张图纸
- 2层大附中体育馆建筑施工图纸
- 大附中体育场看台建筑施工图纸
- 3米高制衣厂大门建筑施工图纸
- 单层砖混结构古建大门建筑CAD施工图纸(高7米)
- 单层框架结构南大门建筑CAD施工图纸(高7米)
- 清明上河园歇山顶大门建筑施工图纸
- 大学附中学校建筑设计方案文本
- 大广北高速公路段冬季施工方案(土建工程)
- 百事龙北小区大底盘多塔楼结构设计.pdf
- 1层钢结构中学大门建筑方案设计图纸(高12米)
- 工具公司单层砖混结构大门建筑方案设计CAD图纸(高7米)
- 小学单层砖混结构大门建筑方案设计CAD图纸(高6米)
- 清明上河园歇山顶大门建筑施工CAD图纸
- 上6层钢筋混凝土框架厂房建筑施工CAD图纸(高22.4米)
- 上7层框架结构酒店建筑方案设计CAD图纸(高23.4米)
全部评论
						
							评论网友评论仅友表达个人看法,并不表明本站同意其观点,不得发布违反法律法规的内容!
						
						
 
	              	 
	              	 
	              	