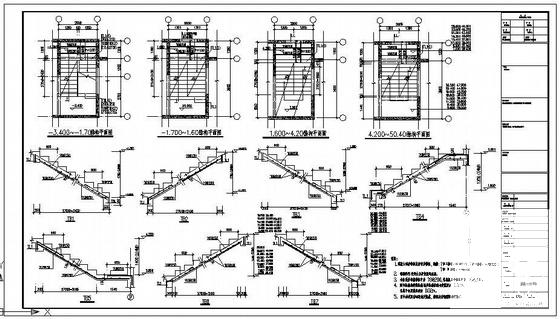
危旧平房改造住宅小区部分结构图纸
- 发布时间:2021-11-29
- 评论次数:0
- 浏览次数:0
- 文件大小:3.83 MB
- 收藏次数:0
- 
								文件名称: 附件-995877507587588588776.rar 附件-995877507587588588776.rar
								住宅结构改造下载
							
						- 6层危旧住宅楼改造建筑CAD施工图纸
- 旧楼改造幕墙竣工图纸
- 旧楼改造幕墙竣工CAD图纸
- 旧工厂改造工程(的建筑)
- 旧楼改造施工方案(平改坡)
- 国道大桥危桥改造工程监理计划
- 乡村公路危桥改造工程施工方案
- 山区二级公路危病桥梁修复改造图纸.
- 2016年设计山区二级公路危病桥梁修复改造图纸51张.
- 住宅小区部分景观设计施工CAD图纸
- 村道旧路改造工程施工图纸设计平面图
- 5层中学旧楼改造工程电气CAD施工图纸(照明系统图)
- 城市支路旧路改造工程排水电力照明CAD施工方案图纸设计
- 城市支路旧路改造工程道路CAD施工图纸设计48张
- 5层中学旧楼改造工程电气CAD施工图纸
- 17层星级宾馆旧楼改造项目电气套CAD施工图纸
- 上17层星级宾馆旧楼改造项目电气套图纸.dwg
- 村道旧路改造工程CAD施工图设计(19页图纸).dwg
- 城市支路旧路改造工程道路CAD施工图纸设计.dwg
- 旧楼改造加室外钢结构电梯结构CAD施工图纸(民用建筑设计)
全部评论
						
							评论网友评论仅友表达个人看法,并不表明本站同意其观点,不得发布违反法律法规的内容!
						
						
 
	              	 
	              	 
	              	