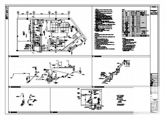
高尔夫度假俱乐部配套设施给排水CAD施工图纸
- 发布时间:2022-10-11
- 评论次数:0
- 浏览次数:0
- 文件大小:6.09 MB
- 收藏次数:0
-
文件名称:
附件-995860690959755767779.rar
相关下载
- 高尔夫俱乐部消防报警电气CAD图纸
- 两层高尔夫俱乐部电气CAD施工图纸
- 国际高尔夫俱乐部3层会所建筑CAD施工图纸
- 2层高尔夫俱乐部电气CAD施工图纸(火灾自动报警)
- 2层高尔夫俱乐部别墅建筑施工CAD大样图
- 殡仪馆及配套设施给排水施工图纸cad
- 上两层高尔夫俱乐部中央空调CAD图纸
- 厂房及配套设施设备基础施工方案
- 8层外商俱乐部给排水CAD施工图纸
- 8层外商俱乐部给排水CAD施工图纸
- 高尔夫会员寓所给排水CAD图纸
- 2层高尔夫球会俱乐部会员寓所建筑结构施工CAD图纸
- 地下通道配套设施给排水施工图纸cad平面图及系统图
- 住宅居住小区基础设施配套项目室外给排水管道施工方案
- 俱乐部景墙水幕给排水CAD图纸
- 高尔夫会所桑拿池给排水设计施工图纸
- 国内公园基础设施系统配套给排水CAD图纸(大型公共建筑)
- 火炬设施系统配套工程钢结构管架施工图纸
- 老旧小区配套设施改造桥涵工程施工图纸
- 增容工程配套通信终端及光缆敷设施工图纸
全部评论
评论网友评论仅友表达个人看法,并不表明本站同意其观点,不得发布违反法律法规的内容!
