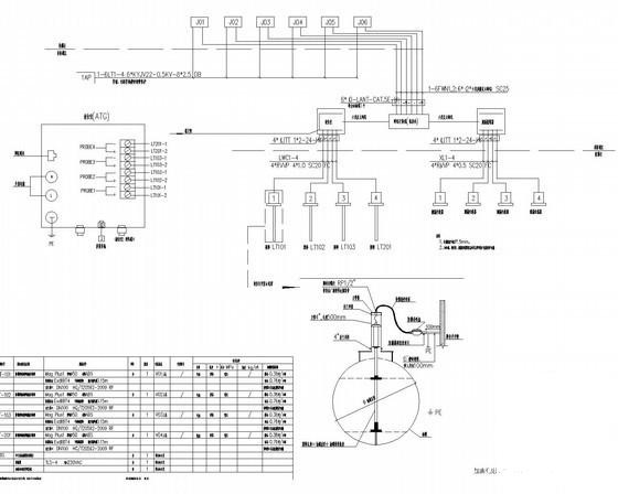
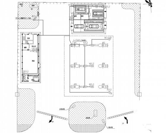
加油站电气设计CAD施工图纸(便利店)(自动监控系统)
- 发布时间:2022-10-11
- 评论次数:0
- 浏览次数:0
- 文件大小:3.54 MB
- 收藏次数:0
-
文件名称:
附件-995856085808068778079.rar
相关下载
- 电气设计用监控系统CAD图纸块.dwg
- 三级负荷加油站强弱电CAD施工图纸(甲级设计院)(自动监控系统)
- 加油站电气设计.dwg
- 监控系统CAD图纸
- 小区16层住宅楼电气设计CAD施工图纸(电视监控系统)
- 6层酒店电气设计CAD施工图纸(电视监控系统)
- 小区20层住宅楼电气设计CAD施工图纸(电视监控系统)
- 多层酒店电气CAD施工图纸(电气设计说明)(电视监控系统)
- 5层大学实验楼电气设计CAD施工图纸(视频监控系统)
- 监控机房电气设计.dwg
- BAS电梯系统监控系统CAD图纸
- BAS冷冻系统监控系统CAD图纸
- BAS电梯系统监控系统CAD图纸
- 监控系统CAD图纸块
- 监控系统大样CAD图纸
- 通用监控系统CAD图纸
- 街道监控系统CAD图纸
- 舞台监控系统CAD图纸
- 加油站电气设计图纸.dwg
- 汽车加油站电气设计图纸
全部评论
评论网友评论仅友表达个人看法,并不表明本站同意其观点,不得发布违反法律法规的内容!
