污水处理厂办公楼结构设计CAD施工图纸(五张)

附件详情

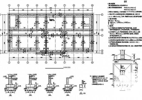
该资料包含:设计说明,基础 平面布置图 ,结构平面图,楼梯平面及配筋图
共5张图纸。

以下是附件的其中一部分截图,共4张,您也可以 搜索 更多您想要的资源
  • 污水处理厂办公楼结构设计CAD施工图纸(五张) - 1
    第 1 张图
  • 污水处理厂办公楼结构设计CAD施工图纸(五张) - 2
    第 2 张图
  • 污水处理厂办公楼结构设计CAD施工图纸(五张) - 3
    第 3 张图
  • 污水处理厂办公楼结构设计CAD施工图纸(五张) - 4
    第 4 张图
以上是部分截图,请下载附件后查看完整高清内容
网站首页  | 
本站所有内容均由网友自主分享,仅供学习和参考,如有侵权内容或者违法行为,请及时联系站长删除。