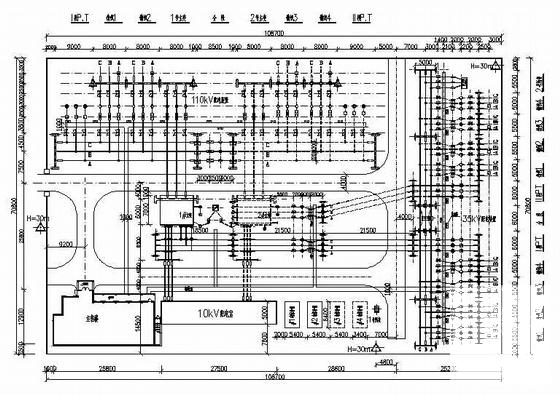
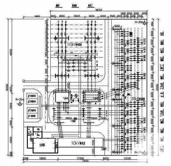
110kV变电站初步设计电气CAD施工图纸
- 发布时间:2022-10-10
- 评论次数:0
- 浏览次数:0
- 文件大小:0.52 MB
- 收藏次数:0
- 
								文件名称: 附件-995857875667958507880.rar 附件-995857875667958507880.rar
								相关下载
							
						- 110KV变电站电气施工图纸.
- 110KV变电站电气CAD图纸
- 110kV新生源变电站初步设计方案(设备CAD施工图纸)
- 110kv降压变电站施工方案
- 110KV变电站户内设备安装电气CAD施工图纸
- 110KV变电站电气CAD施工图纸
- 110KV变电站户外设备安装电气CAD施工图纸
- 110kV变电站电气安装工程施工专项应急预案
- 110kv变电站典型设计CAD图纸
- 110KV变电站典型布置CAD图纸
- 110KV变电站主接线CAD图纸
- 110kV变电站主接线CAD图纸
- 110KV变电站主接线CAD图纸
- 110KV变电站认可CAD图纸
- 110KV变电站工程电气设计图纸
- 110KV变电站主变压器保护电气设计CAD图纸
- 110KV变电站室外控制箱电气设计CAD图纸
- 110kv变电站典型电气设计CAD图纸
- 110KV变电站消弧线圈接地部分电气CAD图纸
- 110KV变电站电气主接线CAD图纸
全部评论
						
							评论网友评论仅友表达个人看法,并不表明本站同意其观点,不得发布违反法律法规的内容!
						
						
 
	              	