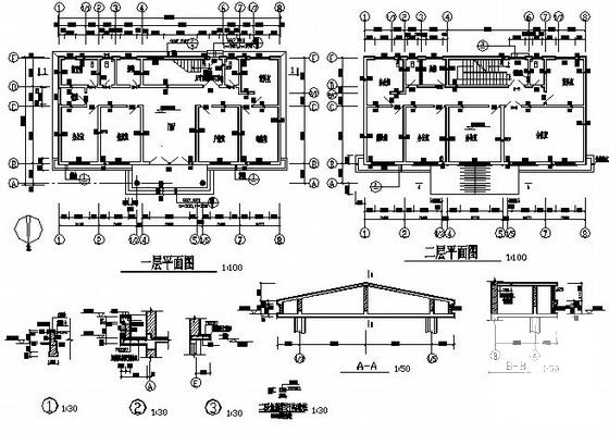
6层综合办公楼建筑CAD图纸
- 发布时间:2022-10-02
- 评论次数:0
- 浏览次数:0
- 文件大小:0.21 MB
- 收藏次数:0
- 
								文件名称: 附件-995850777655999875575.rar 附件-995850777655999875575.rar
								相关下载
							
						- 综合办公楼建筑施工CAD图纸
- 综合办公楼建筑设计方案
- 2层办公楼建筑给排水CAD图纸(办公楼、综合仓库)
- 财政综合办公楼综合布线设计
- 2层综合办公楼结构CAD施工图纸(含建筑图纸)
- 2层砌体综合办公楼结构CAD施工图纸(建筑图纸)
- 25层钢筋混凝土结构综合大厦办公楼建筑施工CAD图纸
- 工厂综合办公楼建筑CAD施工图纸
- 6层综合办公楼建筑CAD施工图纸
- 20层商住综合办公楼建筑方案设计CAD图纸
- 大学6层综合办公楼建筑方案设计CAD图纸
- 4层综合办公楼建筑方案设计CAD图纸
- 2层综合办公楼建筑施工CAD图纸
- 9层框架综合办公楼建筑施工CAD图纸
- 14.7米综合办公楼建筑CAD施工图纸
- 现代风格企业综合办公楼建筑方案设计CAD图纸
- 工厂综合办公楼建筑CAD施工图纸
- 综合办公楼毕业设计方案(建筑结构CAD图纸)
- 6层综合办公楼建筑施工CAD图纸(框架结构)
- 公司综合办公楼及配套设施建筑CAD图纸(地下停车场)
全部评论
						
							评论网友评论仅友表达个人看法,并不表明本站同意其观点,不得发布违反法律法规的内容!
						
						
 
	              	 
	              	 
	              	