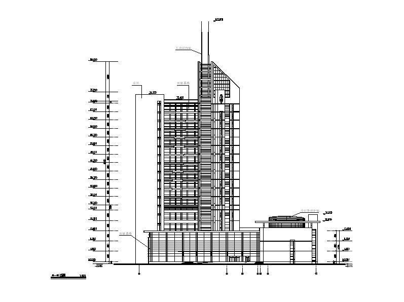
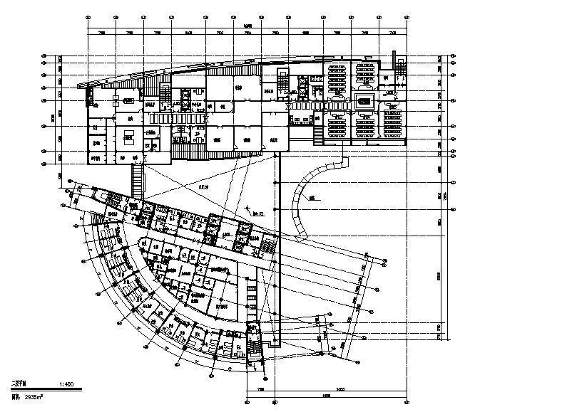
现代感连廊式三级甲等综合性病房大楼建筑施工CAD图纸(非机动车停车位)
- 发布时间:2022-09-28
- 评论次数:0
- 浏览次数:0
- 文件大小:9.42 MB
- 收藏次数:0
- 
								文件名称: 附件-995856897976775767688.zip 附件-995856897976775767688.zip
								相关下载
							
						- 15层综合性二级甲等医院病房楼电气CAD施工图纸
- 大楼连廊钢结构设计CAD图纸
- 综合性二级甲等医院病房楼电气设计CAD施工图纸(消防报警及联动)
- 高层连廊式办公酒店综合体建筑cad施工图纸_高层酒店
- 三类甲等医院16层病房楼建筑扩初图纸
- 4层12班幼儿园建筑施工CAD图纸(非机动车停车位)
- 3种2层医院大楼间连廊结构施工图纸
- 框架结构营业大楼结构施工图纸(带连廊)
- 2层3种医院大楼间连廊结构CAD施工图纸
- 示范中学整体校区建筑设计图纸(非机动车停车位)
- 廊桥(连廊)结构CAD施工图纸.dwg
- 5层连廊式横线线条新建中学建筑设计方案文本
- 大楼连廊钢结构设计CAD图纸.dwg
- 驿馆连廊施工CAD详图纸
- 天桥连廊CAD施工图纸
- 框架连廊CAD施工图纸
- 风雨连廊施工CAD详图纸
- 钢连廊节点详图纸2018
- 钢连廊结构详图纸2018
- 仿古连廊设计CAD图纸
全部评论
						
							评论网友评论仅友表达个人看法,并不表明本站同意其观点,不得发布违反法律法规的内容!
						
						
 
	              	 
	              	 
	              	 
	              	 
	              	