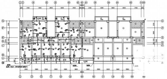
8层底框-抗震墙砌体结构商住楼结构CAD施工图纸(坡屋面)
- 发布时间:2022-09-28
- 评论次数:0
- 浏览次数:0
- 文件大小:1.03 MB
- 收藏次数:0
-
文件名称:
附件-995876758797589866696.zip
相关下载
- 5层底框抗震墙结构商住楼结构施工图纸
- 6层筏型基础坡屋面底框结构商住楼结构CAD施工图纸
- 底框结构商住楼结构CAD施工图纸(6层筏型基础坡屋面)
- 底框抗震墙结构设计说明
- 底框抗震墙结构设计说明
- 底框抗震墙结构设计说明
- 底框抗震墙结构设计说明
- 底框抗震墙结构设计说明
- 底框抗震墙结构设计说明
- 底框复合地基住宅结构CAD施工图纸(坡屋面)
- 底框抗震墙结构设计说明_三级抗震工程结构
- 底框商住楼结构
- 底框独立基础商住楼结构CAD施工图纸(6度抗震)
- 5层底框抗震墙结构廉租房结构设计施工图纸
- 5层底框抗震墙结构廉租房结构CAD施工图纸
- 6层廉租房坡屋面底框结构住宅楼结构CAD施工图纸
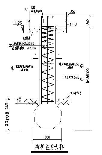
- 底框抗震墙楼梯节点构造详图纸cad
- 底框结构商住楼结构图纸
- 地上6层底框结构住宅楼结构施工大样图(坡屋面)
- 底框结构住宅楼结构CAD施工大样图(6层廉租房坡屋面)
全部评论
评论网友评论仅友表达个人看法,并不表明本站同意其观点,不得发布违反法律法规的内容!
