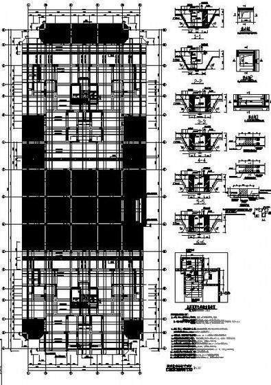
高层双塔楼人防结构CAD施工图纸(筏型基础)
- 发布时间:2022-09-26
- 评论次数:0
- 浏览次数:0
- 文件大小:1.19 MB
- 收藏次数:0
-
文件名称:
附件-995876975779570868066.rar
相关下载
- 高层双塔楼人防结构CAD施工方案图纸
- 超高层住宅楼结构CAD施工图纸(筏型基础)
- 高层梁筏板基础结构图纸(带人防).dwg
- 38层剪力墙结构高层住宅楼结构CAD施工图纸(筏型基础)
- 4层框架结构办公楼结构CAD施工图纸(筏型基础)
- 框架剪力墙结构住宅结构CAD施工图纸(14层筏型基础)
- 筏形基础人防车库结构施工图纸(计算书)
- 单层筏型基础锅炉房结构设计施工图纸
- 12层框剪商务办公楼结构CAD施工图纸(筏型基础)
- 混凝土框架游泳池结构CAD施工图纸(筏型基础)
- 18层剪力墙住宅楼结构CAD施工图纸(筏型基础)
- 框剪会所结构CAD施工图纸(6层筏型基础)
- 18层筏板基础剪力墙结构住宅楼结构CAD施工图纸(筏型基础)(平面布置图)
- 高层塔楼单层人防地下室结构CAD施工图纸(、16张)(自动门)
- 6层住宅楼建筑施工CAD图纸(筏型基础,)
- 国内剪力墙结构高层住宅楼结构CAD施工图纸(梁板式筏型基础)(现浇钢筋混凝土)
- 14层筏型基础框架剪力墙结构住宅楼结构CAD施工图纸(筏板配筋)
- 筏板基础结构详图纸
- 17层框架结构筏型基础住宅楼结构设计施工图纸
- 筏型基础框架结构5层综合楼结构设计施工图纸
全部评论
评论网友评论仅友表达个人看法,并不表明本站同意其观点,不得发布违反法律法规的内容!
