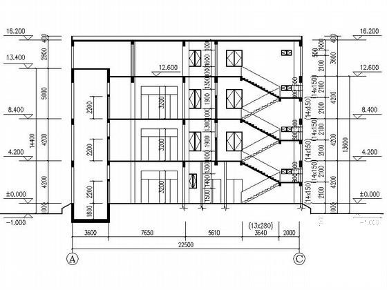
人民医院3层住院楼建筑施工CAD图纸(6号楼)
- 发布时间:2022-09-26
- 评论次数:0
- 浏览次数:0
- 文件大小:0.57 MB
- 收藏次数:0
-
文件名称:
附件-995856995799978788889.rar
相关下载
- 人民医院3层住院楼建筑施工CAD图纸(5号楼)
- 人民医院3层住院楼建筑施工CAD图纸(4号楼)
- 人民医院3层住院楼建筑施工CAD大样图(5号楼)
- 人民医院3层住院楼建筑施工CAD大样图(6号楼)
- 人民医院3层住院楼建筑施工CAD大样图(4号楼)
- 人民医院综合住院楼电气CAD施工图纸
- 第三人民医院住院楼设计
- 人民医院住院楼群间连廊建筑施工CAD图纸(线条大样)
- 人民医院急诊楼设计方案(建筑)
- 8层人民医院分院妇幼住院楼电气平面图及系统图
- 县人民医院6层住院楼建筑施工CAD图纸(效果图纸)(卫生间大样图)
- 15层医院住院楼建筑方案初步CAD图纸
- 12层人民医院门诊住院部灾后重建建筑施工CAD图纸
- 传染病医院住院楼建筑设计研究
- 妇幼保健院门诊楼住院楼建筑施工CAD大样图
- 医院住院楼弱电设计CAD图纸
- 18层人民医院门诊楼改扩建建筑施工CAD图纸
- 人民医院新区6层病房楼建筑施工套CAD图纸
- 人民医院4层病房楼建筑施工CAD图纸(卫生间详图)
- 县人民医院19层病房综合楼建筑施工CAD图纸
全部评论
评论网友评论仅友表达个人看法,并不表明本站同意其观点,不得发布违反法律法规的内容!
