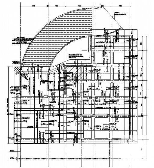
19层框架结构住宅楼结构CAD施工图纸(筏板基础)(平面布置图)
- 发布时间:2022-09-25
- 评论次数:0
- 浏览次数:0
- 文件大小:2.4 MB
- 收藏次数:0
-
文件名称:
附件-995876878559957885506.rar
相关下载
- 18层筏板基础剪力墙结构住宅楼结构CAD施工图纸(筏型基础)(平面布置图)
- 框架结构住宅楼结构CAD施工图纸(6层筏板基础)
- 框架结构住宅楼结构CAD施工图纸(19层筏板基础)
- 框架结构住宅楼结构CAD施工图纸(6层筏板基础)
- 筏板基础标准施工大样图cad平面布置图
- 筏板基础构造详细设计CAD图纸(平面布置图)
- 筏板基础构造详图纸cad平面布置图
- 筏板基础结构详图纸
- 筏板基础平面图纸及CAD详图纸
- 筏板基础梁平面表示法说明
- 筏板基础CAD施工图纸
- 筏板基础CAD施工图纸
- 厂房筏板基础布置图纸及基础节点构造详图纸.
- 6层框架结构住宅楼结构CAD施工图纸(筏板基础知名设计院)
- 6层框架结构住宅楼结构CAD施工图纸(筏板基础知名设计院)
- 5层框架结构办公楼结构施工图纸(筏板基础)
- 框架结构超市结构施工图纸(2层筏板基础)
- 6层筏板基础框架结构商住楼结构CAD施工图纸
- 框架结构商住楼结构CAD施工图纸(6层筏板基础)(平面布置图)
- 6层筏板基础砖混结构住宅楼结构CAD施工图纸(抗震不设防)(平面布置图)
全部评论
评论网友评论仅友表达个人看法,并不表明本站同意其观点,不得发布违反法律法规的内容!
