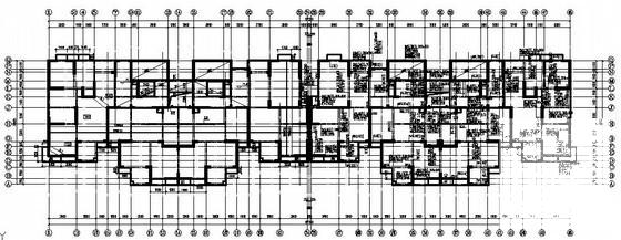
地上24层地下1层剪力墙住宅楼结构CAD施工图纸(桩基础)
- 发布时间:2022-09-25
- 评论次数:0
- 浏览次数:0
- 文件大小:1.7 MB
- 收藏次数:0
- 
								文件名称: 附件-995876869555575769887.rar 附件-995876869555575769887.rar
								相关下载
							
						- 地上33层地下1层剪力墙住宅楼结构CAD施工图纸(筏型基础)
- 地上26层地下1层剪力墙住宅楼结构CAD施工图纸(筏形基础)
- 地上22层地下4层桩基础框架剪力墙住宅楼结构CAD施工图纸
- 桩基础,地下1层,地上18层剪力墙住宅楼结构CAD施工图纸
- 27层剪力墙住宅楼结构CAD施工图纸(桩筏基础)
- 地上18层地下1层剪力墙住宅楼结构图纸
- 地下1层地上33层剪力墙住宅楼结构CAD图纸
- 地下2层,地上18层剪力墙公馆结构CAD施工图纸(筏型基础)
- 地上18层剪力墙结构住宅楼结构CAD施工图纸(地下1层)
- 地上18层剪力墙结构高层住宅楼结构CAD施工图纸(地下1层)
- 地上24层剪力墙结构住宅楼结构CAD施工图纸(地下1层)
- 地上11层剪力墙结构住宅楼结构CAD施工图纸(地下3层)
- 地上11层剪力墙结构住宅楼结构CAD施工图纸(地下1层)
- 桩基础,地下1层,地上18层剪力墙住宅结构CAD施工大样图
- 30层剪力墙结构桩筏基础住宅楼结构CAD施工图纸
- 33层剪力墙结构住宅楼结构CAD施工图纸(平板式桩筏基础)
- 38层桩筏基础剪力墙结构高层住宅楼结构CAD施工图纸
- 32层剪力墙结构住宅楼结构CAD施工图纸(CFG桩筏板基础)
- 6层剪力墙结构住宅楼结构CAD施工图纸_桩承台基础
- 剪力墙结构高层住宅楼结构CAD施工图纸(38层桩筏基础)
全部评论
						
							评论网友评论仅友表达个人看法,并不表明本站同意其观点,不得发布违反法律法规的内容!
						
						
 
	              	 
	              	 
	              	