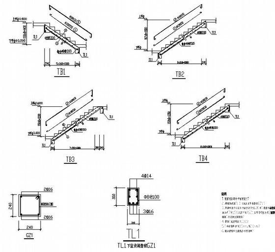
底框结构住宅楼结构CAD施工图纸(7层桩基础)
- 发布时间:2022-09-25
- 评论次数:0
- 浏览次数:0
- 文件大小:0.93 MB
- 收藏次数:0
- 
								文件名称: 附件-995876865898987776057.rar 附件-995876865898987776057.rar
								相关下载
							
						- 6层底框结构住宅楼结构CAD施工图纸(条形基础)
- 6层桩基础底框结构住宅楼结构CAD施工图纸
- 6层底框结构住宅楼结构CAD施工图纸(砖石基础独立基础)
- 底框结构住宅楼结构CAD图纸
- 7层挖孔桩底框结构住宅楼结构设计施工图纸
- 6层(带地下室)底框结构住宅楼结构CAD施工图纸(独立基础)
- 10层桩基础底框结构住宅楼结构CAD施工图纸(6度抗震)
- 6层桩基础底框结构住宅楼结构CAD施工图纸(梁平法配筋图)
- 7层底框结构住宅楼结构CAD施工图纸(坡屋顶)(基础平面图)
- 7层挖孔桩底框结构CAD施工图纸
- 底框结构住宅楼结构CAD施工大样图(7层桩基础)
- 底框结构CAD施工图纸
- 筏板基础底框结构住宅结构设计施工图纸
- 7层底框结构厂房结构CAD施工图纸(桩基础)
- 6层底框砖混结构商住结构CAD施工图纸(条形基础)
- 6层桩基础底框结构房屋结构CAD施工图纸
- 底框结构住宅结构CAD施工图纸(6层桩基础)
- 5层底框结构砖混结构住宅楼结构施工图纸
- 11层框剪结构住宅楼结构CAD施工图纸(桩基础)(预应力混凝土管桩)
- 多层底框抗震墙住宅楼结构CAD施工图纸(桩基础)(梁平法配筋图)
全部评论
						
							评论网友评论仅友表达个人看法,并不表明本站同意其观点,不得发布违反法律法规的内容!
						
						
 
	              	 
	              	 
	              	