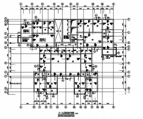
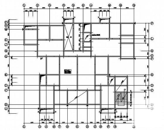
26层剪力墙住宅楼结构CAD施工图纸(电梯机房含塔楼)
- 发布时间:2022-09-25
- 评论次数:0
- 浏览次数:0
- 文件大小:1.89 MB
- 收藏次数:0
- 
								文件名称: 附件-995876897857780707078.rar 附件-995876897857780707078.rar
								相关下载
							
						- 26层剪力墙住宅楼结构CAD施工图纸(电梯机房含塔楼)
- 电梯机房平面布置CAD图纸
- 电梯机房吊钩大样CAD图纸
- 住宅电梯机房结构节点构造详图纸cad
- 26层塔楼桩基础剪力墙结构住宅楼结构CAD施工图纸
- 剪力墙结构住宅楼结构CAD施工图纸(26层塔楼桩基础)
- 钢结构电梯井道及机房结构CAD施工图纸
- 钢结构电梯井道及机房结构CAD施工图纸.dwg
- 电梯井详细设计CAD图纸(机房平面图)
- 电梯机房吊钩节点构造CAD详图纸
- 乘客电梯井道布置CAD图纸(有机房、无机房)
- 25层塔楼式纯剪力墙住宅楼结构CAD施工图纸(带裙房)
- 大型商业办公塔楼电梯工程施工方案57页(鲁班奖)
- 无机房圆形观光电梯结构设计施工图纸
- 无机房圆形观光电梯结构CAD施工图纸
- 空调机房设计CAD图纸,含说明
- 无机房观光电梯钢结构井道(CAD图纸,7张)(多层建筑)
- 26层带地下室、塔楼剪力墙结构住宅CAD施工图纸
- 26层带地下室、塔楼剪力墙结构CAD施工图纸
- 污水厂污泥脱水机房含设备结构施工大样图(CAD)
全部评论
						
							评论网友评论仅友表达个人看法,并不表明本站同意其观点,不得发布违反法律法规的内容!
						
						
 
	              	 
	              	 
	              	