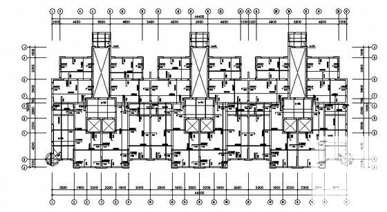
18层剪力墙住宅楼结构CAD施工图纸(筏板基础车库)
- 发布时间:2022-09-23
- 评论次数:0
- 浏览次数:0
- 文件大小:1.64 MB
- 收藏次数:0
-
文件名称:
附件-995876797508787767860.rar
相关下载
- 18层剪力墙住宅结构CAD施工图纸(筏板基础车库)
- 板柱结构地下1层车库结构CAD施工图纸(筏板基础)
- 筏板基础及地下车库构造
- 剪力墙住宅楼结构CAD施工图纸(17层筏板基础)
- 14层剪力墙住宅楼结构CAD施工图纸(桩基础筏板基础)
- 筏板基础结构详图纸
- 国内地下1层车库结构CAD施工图纸(筏板基础)
- 18层筏板基础剪力墙结构住宅楼结构CAD施工图纸(筏型基础)(平面布置图)
- 17层筏板基础带地下车库住宅楼结构CAD施工图纸(6度抗震)
- 筏板基础CAD施工图纸
- 筏板基础CAD施工图纸
- 18层筏板基础剪力墙结构住宅结构CAD施工图纸
- 剪力墙结构住宅结构CAD施工图纸(12层筏板基础)
- 16层剪力墙结构住宅楼结构CAD施工图纸(筏板基础)
- 剪力墙结构住宅楼结构CAD施工图纸(33层筏板基础)
- 7层筏板基础剪力墙结构住宅楼结构CAD施工图纸
- 剪力墙结构住宅楼结构CAD施工图纸(12层筏板基础)
- 剪力墙结构住宅楼结构CAD施工图纸(21层筏板基础)
- 剪力墙结构住宅楼结构CAD施工图纸(26层筏板基础)
- 30层剪力墙结构住宅楼结构CAD施工图纸(筏板基础)
全部评论
评论网友评论仅友表达个人看法,并不表明本站同意其观点,不得发布违反法律法规的内容!
