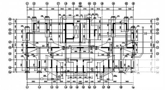
22层剪力墙农转居公寓(1、2#)结构CAD施工图纸(平面布置图)
- 发布时间:2022-09-23
- 评论次数:0
- 浏览次数:0
- 文件大小:2.91 MB
- 收藏次数:0
- 
								文件名称: 附件-995876788997085879587.rar 附件-995876788997085879587.rar
								相关下载
							
						- 小康农居建筑施工CAD图纸
- 3层农居建筑CAD图纸
- 小康农居建筑CAD图纸
- 精美小康农居建筑CAD图纸
- 生态庭院农居建筑CAD图纸
- 高层公寓楼1、2#公寓给排水施工图纸cad平面图
- 精美小康农居建筑施工CAD图纸
- 3层小康农居全套施工图纸
- 2层小康农居建筑施工CAD图纸
- 单层小康农居方案设计CAD图纸
- 小康农居建筑设计CAD图纸
- 中式风格3层小康农居建筑CAD图纸
- 单层小康农居方案(效果初设图纸)
- 3层小康农居建筑方案设计CAD图纸(5张)(平面图)
- 中式风格3层小康农居建筑扩初图纸(CAD平面图)
- 3层小康农居建筑结构CAD施工图纸
- 3层新农村建设农居建筑结构CAD施工图纸
- 比较精美的2层小康农居建筑施工CAD图纸
- 中式风格3层独栋别墅小康农居建筑施工CAD图纸
- 2层中式风格小康农居独栋别墅建筑施工CAD图纸
全部评论
						
							评论网友评论仅友表达个人看法,并不表明本站同意其观点,不得发布违反法律法规的内容!
						
						
 
	              	 
	              	 
	              	