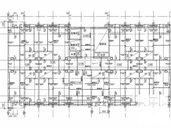
16层框架剪力墙结构酒店式公寓、临街商铺结构CAD施工图纸
- 发布时间:2022-09-22
- 评论次数:0
- 浏览次数:0
- 文件大小:4.72 MB
- 收藏次数:0
-
文件名称:
附件-995876796767676590890.rar
相关下载
- 框架公寓式酒店结构CAD图纸
- 26层框架剪力墙结构酒店式公寓结构施工图纸
- 17层框架抗震剪力墙结构公寓式酒店结构施工图纸
- 酒店式公寓结构图纸
- 17层公寓式酒店强弱电CAD施工图纸(商铺客房)
- 17层公寓式酒店强弱电CAD施工大样图(商铺客房)
- 3层框架结构商业街临街商铺结构CAD施工图纸(预应力混凝土管桩)
- 酒店式公寓文本合集
- 2层别墅式公寓酒店框架结构施工方案大样图
- 昆山酒店式公寓通风图纸
- 昆山酒店式公寓电气CAD图纸
- 酒店式公寓墙身大样CAD图纸
- 酒店式公寓配电系统CAD图纸
- 35层剪力墙超高层酒店式公寓结构CAD施工图纸(地下3层)
- 13层框剪结构酒店式公寓结构设计CAD施工图纸
- 酒店式公寓楼梯剖面大样
- 16层商业酒店式公寓楼强弱电CAD施工图纸62张(商铺公寓活动场所)(电气节能设计专篇)
- 16层商业酒店式公寓楼强弱电施工CAD大样图62张(商铺公寓活动场所)
- 欧陆风格沿街14层框架结构酒店式公寓建筑施工CAD图纸
- 25层酒店式公寓空调施工图纸
全部评论
评论网友评论仅友表达个人看法,并不表明本站同意其观点,不得发布违反法律法规的内容!
