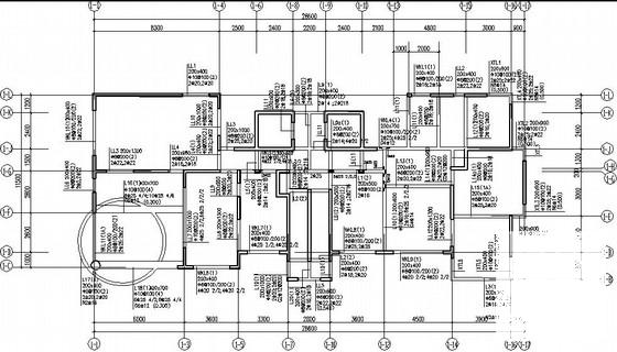
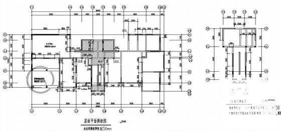
22层框架剪力墙结构住宅楼结构CAD施工图纸(桩基础)
- 发布时间:2022-09-19
- 评论次数:0
- 浏览次数:0
- 文件大小:2.73 MB
- 收藏次数:0
- 
								文件名称: 附件-995876855779798897007.zip 附件-995876855779798897007.zip
								相关下载
							
						- 27层剪力墙住宅楼结构CAD施工图纸(桩筏基础)
- 30层剪力墙结构桩筏基础住宅楼结构CAD施工图纸
- 33层剪力墙结构住宅楼结构CAD施工图纸(平板式桩筏基础)
- 38层桩筏基础剪力墙结构高层住宅楼结构CAD施工图纸
- 32层剪力墙结构住宅楼结构CAD施工图纸(CFG桩筏板基础)
- 6层剪力墙结构住宅楼结构CAD施工图纸_桩承台基础
- 剪力墙结构高层住宅楼结构CAD施工图纸(38层桩筏基础)
- 82.95米高框架剪力墙结构商住两用结构施工图纸(桩筏基础)
- 桩筏基础剪力墙结构住宅结构CAD施工图纸
- 16层剪力墙结构安置房结构CAD施工图纸(桩筏基础)
- 30层剪力墙结构桩筏基础住宅结构CAD施工图纸
- 5层框架结构住宅楼结构CAD施工图纸(CFG桩)(柱下独立基础)
- 6层框架结构住宅楼结构CAD施工图纸(人工挖孔桩)(基础设计等级)
- 11层冲孔灌注桩框架剪力墙结构住宅楼结构CAD施工图纸
- 框架剪力墙结构住宅楼结构CAD施工图纸(11层冲孔灌注桩)
- 20层框架剪力墙住宅楼结构CAD施工图纸(桩基础)
- 7层框架剪力墙住宅楼结构CAD施工图纸(桩基础)
- 框架剪力墙住宅楼结构CAD施工图纸(11层桩基础)
- 18层框架剪力墙住宅楼结构CAD施工图纸(桩基础)
- 12层框架剪力墙住宅楼结构CAD施工图纸(条形基础)
全部评论
						
							评论网友评论仅友表达个人看法,并不表明本站同意其观点,不得发布违反法律法规的内容!
						
						
 
	              	 
	              	 
	              	