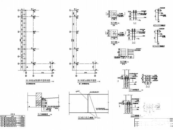
5层框架与钢桁架混合结构教学楼结构CAD施工图纸(地下室抗浮计算书)(平面布置图)
- 发布时间:2022-09-19
- 评论次数:0
- 浏览次数:0
- 文件大小:4.48 MB
- 收藏次数:0
- 
								文件名称: 附件-995877867795687085589.rar 附件-995877867795687085589.rar
								相关下载
							
						- 5层框架与钢桁架混合结构教学楼结构CAD施工图纸(地下室抗浮计算书)
- 抗浮锚杆计算
- 浅谈地下室抗浮锚杆设计(裂缝宽度计算)
- 普通钢桁架设计计算书
- 20层带地下室综合用房结构CAD施工图纸(抗浮计算)
- 抗浮泵房结构CAD图纸
- 大型住宅小区地下室底板结构设计与抗浮验算.pdf
- 住宅小区地下室底板结构设计(抗浮设计).pdf
- 地下室底板抗浮锚杆结构设计(注意事项).pdf
- 辅助教学楼框架结构计算书
- 高层建筑桩基础设计CAD图纸及抗浮验算书
- 4层框架教学楼计算书
- 岩石抗浮锚杆详细设计CAD图纸PDF
- CAD关于基础抗浮锚杆设计说明
- 地上5层框架结构教学楼结构CAD施工图纸(计算书)
- 5层钢混框架结构教学楼毕业设计方案计算书(word,34页)
- 5层钢混框架结构教学楼毕业设计方案计算书
- 钢桁架移动防护雨篷结构CAD施工图纸(平面布置图)
- 钢框架大门结构CAD施工图纸(结构计算书)
- 钢桁架结构场馆施工大样图cad平面布置图
全部评论
						
							评论网友评论仅友表达个人看法,并不表明本站同意其观点,不得发布违反法律法规的内容!
						
						
 
	              	 
	              	 
	              	 
	              	 
	              	