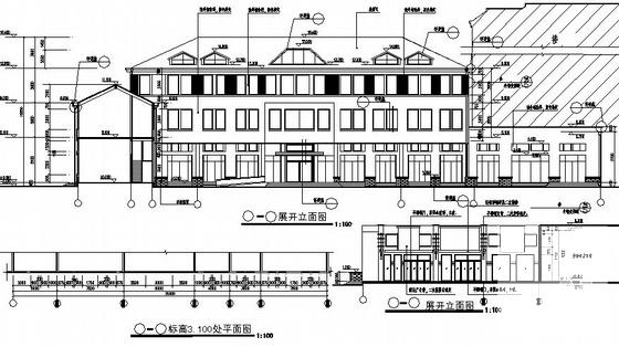
3层长江边豪华会所建筑设计CAD施工图纸
- 发布时间:2022-09-19
- 评论次数:0
- 浏览次数:0
- 文件大小:1.96 MB
- 收藏次数:0
-
文件名称:
附件-995888685709895057968.rar
相关下载
- 长江边独栋多层娱乐会所建筑设计CAD施工图纸(钢筋混凝土结构)
- 长江边3层会所建筑施工CAD图纸(卫生间详图)
- 4层豪华私人会所建筑施工CAD图纸
- 豪华二别墅建筑设计CAD施工图纸
- 3层豪华仿古别墅建筑设计CAD图纸
- 2层豪华别墅建筑设计CAD图纸
- 新加坡的豪华别墅建筑设计CAD图纸
- 欧式豪华别墅建筑设计方案
- 4层豪华商会所照明与插座设计施工图纸
- 3层地知名地产风格豪华会所建筑施工图纸
- 3层地中海风格豪华会所建筑施工CAD图纸
- 单层豪华会所建筑CAD施工图纸(卫生间详图)
- 5层豪华私人会所电气设计CAD施工图纸
- 国际商务休闲豪华酒店会所景观施工CAD图纸
- 超级豪华会所泳池水处理系统安装工程给排水CAD图纸
- 国际花园3层豪华会所建筑扩初图纸(节能设计说明)
- 5层豪华私人会所电气CAD施工图纸(钢筋混凝土结构)(TN-C-S)
- 4层大型豪华商会所照明与插座设计CAD施工图纸(钢筋混凝土结构)()
- 江边别墅屋顶花园景观工程CAD施工图纸全套(推荐下载).dwg
- 会所建筑设计艺术研究.pdf
全部评论
评论网友评论仅友表达个人看法,并不表明本站同意其观点,不得发布违反法律法规的内容!
