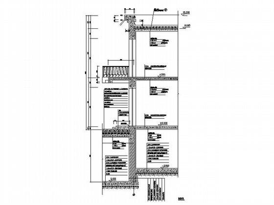
3层娱乐中心建筑施工CAD图纸
- 发布时间:2022-09-19
- 评论次数:0
- 浏览次数:0
- 文件大小:1.59 MB
- 收藏次数:0
-
文件名称:
附件-995888700957507575687.rar
相关下载
- 3层娱乐中心建筑施工CAD图纸
- 娱乐中心建筑设计方案.dwg
- 3层四星级休闲娱乐中心建筑施工CAD图纸
- 4层娱乐中心装修电气施工图纸
- 大型娱乐中心酒吧电气施工CAD图纸
- 休闲娱乐中心电气CAD施工图纸.dwg
- 3层娱乐中心综合楼建筑扩初CAD图纸
- 戏剧影视娱乐中心建筑方案设计CAD图纸
- 商业、旅游娱乐中心建筑方案设计图纸.dwg
- 商业、旅游娱乐中心建筑方案设计图纸(3、4号楼).dwg
- 哥本哈根郊区市民娱乐中心建筑方案设计图纸.
- 3层娱乐中心综合楼建筑扩初CAD初设图纸
- 6层美食娱乐中心电气CAD图纸
- 餐饮娱乐中心室外景观电气图纸
- 娱乐中心景观设计图纸.dwg
- 餐饮娱乐中心室外景观图纸.
- 商业休闲娱乐中心规划及建筑设计方案文本.pdf
- 多层娱乐中心娱乐建筑设计方案(CAD)
- 6层美食娱乐中心电气设计CAD施工图纸(框架结构)
- 4层娱乐中心装修电气CAD施工图纸
全部评论
评论网友评论仅友表达个人看法,并不表明本站同意其观点,不得发布违反法律法规的内容!
