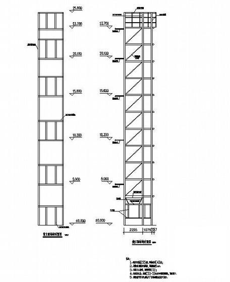
广场观光电梯结构设计施工图纸(7度抗震)
- 发布时间:2021-11-27
- 评论次数:0
- 浏览次数:0
- 文件大小:0.15 MB
- 收藏次数:0
-
文件名称:
附件-995878868590075755777.rar
观光电梯结构施工图下载
- 观光电梯结构图纸
- 原结构新增观光电梯加固施工图纸
- 酒店观光电梯钢结构CAD施工图纸()
- 观光电梯钢结构CAD施工图纸
- 观光电梯钢结构CAD施工图纸.dwg
- 玻璃观光电梯详图纸
- CAD观光电梯幕墙设计
- 观光电梯围护钢结构CAD图纸
- 观光电梯钢结构设计总说明
- 观光电梯钢结构设计CAD图纸
- 增建5层钢框架结构观光电梯结构CAD施工图纸
- 7套钢结构观光电梯结构CAD施工图纸2016.dwg
- 观光电梯幕墙设计(计8页图纸)
- 观光电梯玻璃幕墙设计大样图
- 观光电梯施工节点构造CAD详图纸
- 观光电梯节点构造CAD详图纸
- 电梯、客货梯、观光电梯自动扶梯节点大样
- 9层观光电梯玻璃幕墙钢结构施工图纸
- 医院钢框架观光电梯结构设计施工图纸
- 无机房圆形观光电梯结构设计施工图纸
全部评论
评论网友评论仅友表达个人看法,并不表明本站同意其观点,不得发布违反法律法规的内容!
