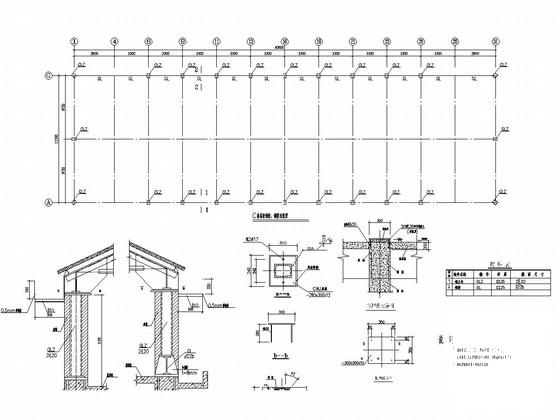
粮食局屋顶平改坡钢结构工程结构CAD施工图纸
- 发布时间:2022-09-18
- 评论次数:0
- 浏览次数:0
- 文件大小:3.38 MB
- 收藏次数:0
- 
								文件名称: 附件-995877877965798896856.rar 附件-995877877965798896856.rar
								相关下载
							
						- 钢结构平改坡屋面全CAD图纸
- 平改坡钢结构屋面节点构造详细设计CAD图纸
- 平改坡钢结构屋面节点构造CAD详图纸
- 平改坡结构CAD图纸
- 住宅楼屋面平改坡(钢结构部分)结构CAD施工图纸
- 大厦屋顶钢结构CAD图纸
- 钢结构屋顶钟楼结构施工图纸
- 轻钢结构屋顶厂房结构CAD施工图纸
- 轻钢结构屋顶结构CAD施工图纸
- 平改坡结构图纸(结构施工说明)
- 结构平改坡加固设计说明
- 平改坡屋面结构设计.pdf
- 砖混结构住宅楼屋面平改坡工程施工方案
- 单层钢结构厂房屋顶气楼施工图纸
- 钢结构厂房屋顶气楼CAD施工图纸
- 屋顶钢结构广告牌CAD施工图纸
- 屋顶钢结构造型CAD施工图纸
- 区粮食局大楼电气全套系统图纸.dwg
- 屋顶加层钢结构工程图纸(设计总说明)
- 住宅楼屋面平改坡(钢结构部分)结构CAD施工图纸(7度抗震)(太阳能热水)
全部评论
						
							评论网友评论仅友表达个人看法,并不表明本站同意其观点,不得发布违反法律法规的内容!
						
						
 
	              	 
	              	 
	              	 
	              	 
	              	