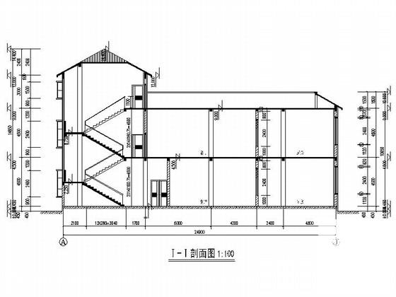
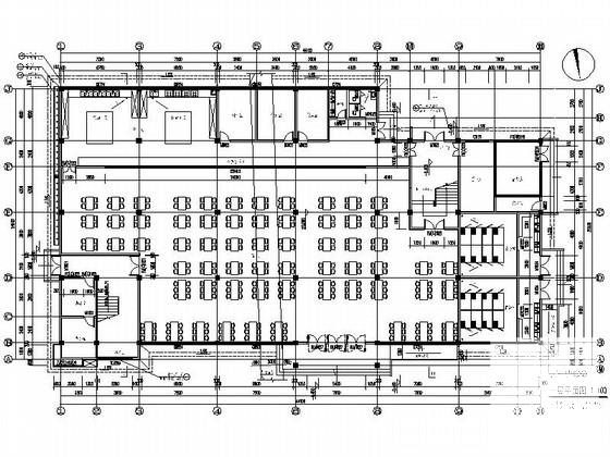
中学3层中式学生食堂、宿舍建筑报建CAD图纸
- 发布时间:2022-09-18
- 评论次数:0
- 浏览次数:0
- 文件大小:4.93 MB
- 收藏次数:0
- 
								文件名称: 附件-995859098909898676785.zip 附件-995859098909898676785.zip
								相关下载
							
						- 中学3层中式学生食堂、宿舍建筑报建初设图纸cad平面图
- 中学6层学生宿舍建筑CAD图纸
- 中学5层学生宿舍建筑施工CAD图纸
- 奉贤中学学生宿舍扩初CAD图纸
- 中学学生宿舍电气CAD图纸
- 6层中学学生宿舍楼CAD施工图纸(建、水、电、结)
- 中学新建校区3层学生食堂建筑结构施工图纸
- 中学新建校区3层学生食堂建筑结构CAD施工图纸
- 中学砌体结构2层学生食堂建筑方案设计CAD图纸
- 中学2层学生食堂建筑方案设计CAD初设图纸
- 丁类工业厂房报建电气施工图纸
- 居住区人防报建CAD施工图纸
- 旅馆消防报建电气设计图纸.dwg
- 大厦副楼改造工程消防报建图纸.
- 乡中学4层学生宿舍建筑扩初CAD图纸(标注详细)
- 7层高中学学生宿舍建筑方案设计CAD图纸
- 中学学生宿舍电气施工CAD图纸(建筑面积)
- 中学5层学生宿舍建筑施工图纸cad平面图
- 市级现代风格中学宿舍楼及食堂CAD施工图纸(建筑面积)
- 6层框架结构中学食堂宿舍多功能厅建筑施工CAD图纸
全部评论
						
							评论网友评论仅友表达个人看法,并不表明本站同意其观点,不得发布违反法律法规的内容!
						
						
 
	              	 
	              	