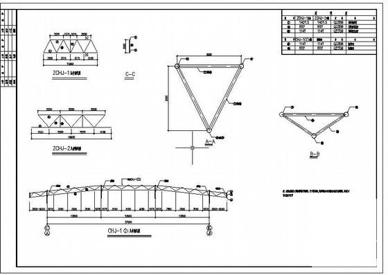
网球俱乐部三角形空间钢管桁架屋盖结构设计图纸
- 发布时间:2021-11-27
- 评论次数:0
- 浏览次数:0
- 文件大小:0.37 MB
- 收藏次数:0
-
文件名称:
附件-995878758667865568888.rar
空间桁架结构设计下载
- 空间拱形桁架屋盖结构设计.pdf
- 中学体育馆方钢管桁架屋盖结构设计.pdf
- 超限高层顶部大空间网架屋盖设计(国芳大酒店)
- 桁架屋盖结构设计CAD图纸
- 钢桁架屋盖厂房CAD图纸
- 空间钢管桁架结构设计说明
- 巨型空间钢管椭圆拱结构设计.pdf
- 空间钢管桁架结构设计说明.dwg
- 钢桁架屋盖厂房图纸(9张图纸)
- 钢构架屋盖节点构造CAD详图纸(四)
- 钢构架屋盖节点构造CAD详图纸(三)
- 钢构架屋盖节点构造CAD详图纸(二)
- 钢构架屋盖节点构造CAD详图纸(一)
- 钢构架屋盖节点构造CAD详图纸
- 钢桁架屋盖结构CAD施工图纸
- 钢桁架屋盖结构CAD施工图纸.dwg
- 车间网架屋盖结构图纸.dwg
- 奥体博览城网球中心移动屋盖钢结构设计
- 管桁架屋盖结构设计CAD图纸.dwg
- 钢管桁架屋面结构设计施工图纸
全部评论
评论网友评论仅友表达个人看法,并不表明本站同意其观点,不得发布违反法律法规的内容!
