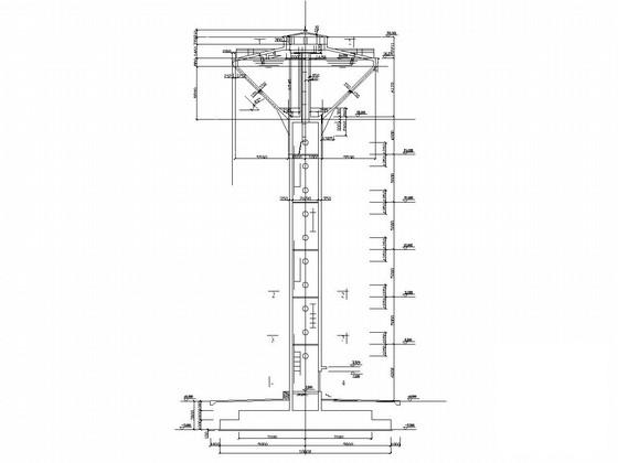
500立方米钢筋混凝土支筒式倒锥型水塔结构CAD施工图纸
- 发布时间:2022-09-15
- 评论次数:0
- 浏览次数:0
- 文件大小:3.48 MB
- 收藏次数:0
- 
								文件名称: 附件-995877568695858755778.rar 附件-995877568695858755778.rar
								相关下载
							
						- 钢筋混凝土支筒式倒锥型水塔结构CAD施工图纸
- 钢筋混凝土倒锥壳伞形水塔施工方案2012
- 水塔支筒详图纸
- 钢筋混凝土倒锥壳不保温水塔
- 50m3倒锥壳水塔结构施工技术.pdf
- 倒锥壳水塔结构设计CAD图纸.dwg
- 单层钢筋混凝土倒锥壳不保温水塔CAD施工图纸.dwg
- 水塔新建施工组织设计(保温、不保温倒锥壳水塔)(合同工期)
- 500吨倒锥壳水塔工程满堂架翻模施工方案
- 水塔支筒详细设计CAD图纸(预埋件)
- 50立方米容积20米高倒锥壳给水塔结构CAD施工图纸
- 16米砖支筒30m³净水塔结构设计CAD施工图纸
- 事故调节水塔筒体结构施工方案.doc
- 16米砖支筒30m³净水塔结构设计CAD施工图纸.dwg
- 预制混凝土圆形曲线式倒虹吸
- 预制混凝土圆形曲线式倒虹吸
- 预制混凝土圆管竖井式倒虹吸
- 预制混凝土圆管竖井式倒虹吸
- 钢筋混凝土结构水塔结构施工图纸
- “蜂巢型”支柱钢结构框架核心筒结构大厦结构CAD施工图纸
全部评论
						
							评论网友评论仅友表达个人看法,并不表明本站同意其观点,不得发布违反法律法规的内容!
						
						
 
	              	 
	              	 
	              	