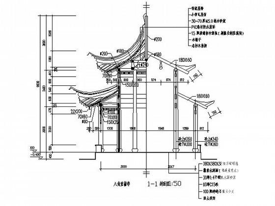
十六柱重檐八角凉亭CAD施工图纸(节点详图)
- 发布时间:2022-09-15
- 评论次数:0
- 浏览次数:0
- 文件大小:0.39 MB
- 收藏次数:0
-
文件名称:
附件-995888870685768985795.rar
相关下载
- 十六柱八角重檐亭CAD施工图纸设计_含节点详图纸
- 古建十六柱八角重檐亭建筑CAD施工图纸
- 十六柱八角重檐亭设计CAD施工图纸
- 八柱重檐八角凉亭及曲桥组合CAD施工图纸(平面图)
- 重檐八角亭节点构造CAD详图纸
- 仿古风格重檐八角亭设计CAD图纸详图(立面图)
- 古建亭子施工图纸集,八角四方重檐亭,五角重檐亭等
- 古建重檐八角亭CAD图纸施工详细图纸
- 景区钢结构凉亭节点详图纸
- 7层八角重檐仿古佛塔建筑施工CAD图纸
- 重檐八角亭设计CAD施工图纸
- 八角四方重檐亭施工方案图纸设计_CAD
- 重檐殿阁施工CAD详图纸
- 园林景观节点详图纸|水景CAD施工图纸设计十六
- 水上观景凉亭施工详图纸
- 欧式铁花凉亭施工详图纸
- 欧式凉亭施工CAD详图纸
- 意大利式凉亭施工CAD详图纸
- 欧式凉亭施工CAD详图纸
- 木质凉亭施工CAD详图纸
全部评论
评论网友评论仅友表达个人看法,并不表明本站同意其观点,不得发布违反法律法规的内容!
