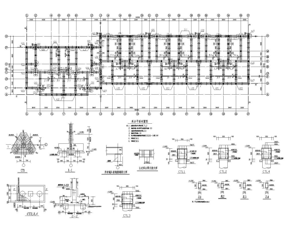
5层住宅楼混凝土框架结构CAD施工图纸()
- 发布时间:2022-09-01
- 评论次数:0
- 浏览次数:0
- 文件大小:1.9 MB
- 收藏次数:0
-
文件名称:
附件-995805798876859898.dwg
相关下载
- 6层住宅楼混凝土框架结构CAD施工图纸()
- 6层住宅楼混凝土框架结构CAD施工图纸()
- 高层32层住宅楼混凝土框架结构CAD施工图纸()
- 框架结构6层住宅楼结构CAD施工图纸(预应力混凝土)
- 5层混凝土框架结构私人住宅楼结构CAD施工图纸(桩基础)
- 6层钢筋混凝土框架结构住宅楼结构CAD施工方案图纸
- 钢筋混凝土框架结构住宅楼结构设计CAD施工图纸.dwg
- 谈谈钢筋混凝土框架结构施工.pdf
- 钢筋混凝土框架结构施工.pdf
- 超长混凝土框架结构施工技术初探.pdf
- 混凝土住宅楼结构CAD施工图纸
- 9层现浇钢筋混凝土框架结构住宅楼结构设计CAD图纸
- 12层框架结构住宅楼建筑施工CAD图纸(框架结构)
- 住宅楼混凝土结构施工质量检测.pdf
- 小高层住宅楼钢筋混凝土框架结构设计.pdf
- 浅谈小高层住宅楼钢筋混凝土框架结构设计策略.pdf
- 钢筋混凝土框架结构的设计探析
- 钢筋混凝土框架结构优化设计探讨
- 混凝土框架结构办公楼设计
- 装配式混凝土框架结构研究现状论文
全部评论
评论网友评论仅友表达个人看法,并不表明本站同意其观点,不得发布违反法律法规的内容!
