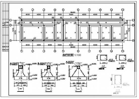
3层砌体结构住宅楼结构设计施工详图
- 发布时间:2021-11-26
- 评论次数:0
- 浏览次数:0
- 文件大小:1.62 MB
- 收藏次数:0
-
文件名称:
附件-995879899708969680077.zip
砌体结构住宅楼图下载
- 6层住宅楼砌体结构cad图和平面布置图
- 7层砌体结构住宅楼结构设计施工大样图
- 6层砌体结构住宅楼结构设计施工大样图
- 6层砌体结构开发区住宅楼结构施工大样图
- 7层砌体结构住宅楼结构CAD施工大样图
- 6层砌体结构住宅楼结构CAD施工大样图
- 砌体结构住宅楼结构CAD施工大样图(6层条形基础)
- 砌体结构住宅楼结构CAD施工图纸
- 5层砌体住宅楼结构加固设计图(6页CAD图纸)
- 6层砌体结构住宅楼结构设计施工图和平面图
- 5层砌体结构住宅楼结构设计施工图和平面图
- 砌体住宅楼结构CAD施工方案图纸
- 多层砌体住宅楼结构CAD施工图纸
- 7层砌体住宅楼结构设计施工图(共两套大样图)
- 砌体结构独立住宅楼cad图纸和门窗大样图,楼梯大样图
- 6层砌体结构住宅楼结构设计施工图,结构图,详图
- 7层砌体结构住宅楼结构设计施工图纸和平面图
- 6层砌体结构住宅楼结构设计施工大样图和详图
- 6层砌体结构住宅楼结构设计施工详图平面布置图
- 三层砌体结构住宅楼结构设计施工平面布置图
全部评论
评论网友评论仅友表达个人看法,并不表明本站同意其观点,不得发布违反法律法规的内容!
