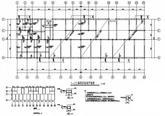
6层砖混新农村改造公寓结构设计施工大样图
- 发布时间:2021-11-26
- 评论次数:0
- 浏览次数:0
- 文件大小:2.07 MB
- 收藏次数:0
- 
								文件名称: 附件-995879867575758897555.rar 附件-995879867575758897555.rar
								公寓结构改造下载
							
						- 新农村改造6层砖混住宅楼结构设计CAD施工大样图
- 5层砖混结构农民公寓结构设计施工大样图
- 6层砖混结构农民公寓结构设计施工大样图
- 6层砖混农民公寓结构设计CAD施工大样图
- 5层砖混农民公寓结构设计CAD施工大样图
- 3层新农村独栋别墅砖混结构
- 新农村砖混结构别墅结构设计施工图纸
- 新农村改造6层砖混住宅楼结构设计图纸(筏形基础)(节点大样图)
- 3层砖混结构新农村独栋别墅全套施工图纸_新农村别墅平面图
- 单层砖混库房混凝土加固改造施工方案大样图
- 3层砖混结构新农村住宅楼建筑结构设计施工图纸
- 2层砖混新农村小别墅建筑结构设计施工图纸
- 新农村砖混别墅结构CAD施工方案图纸
- 砖混结构新农村住宅结构CAD施工方案图纸(4层条形基础)
- 3层砖混新农村住宅建筑结构CAD施工图纸
- 3层砖混新农村住宅建筑结构CAD施工图纸
- 学校4层砖混公寓结构设计施工图纸
- 6层砖混单身公寓结构设计施工图纸
- 6层砖混单身公寓结构设计CAD施工图纸
- 砖混结构单身公寓结构设计CAD施工图纸.dwg
全部评论
						
							评论网友评论仅友表达个人看法,并不表明本站同意其观点,不得发布违反法律法规的内容!
						
						
 
	              	 
	              	 
	              	