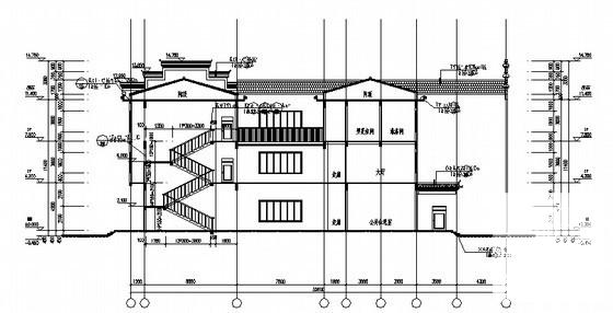
3层中式风格仿徽派物业办公楼建筑CAD施工图纸
- 发布时间:2022-08-20
- 评论次数:0
- 浏览次数:0
- 文件大小:0.58 MB
- 收藏次数:0
-
文件名称:
附件-995850698555957007967.rar
相关下载
- 2层现代风格小型徽派办公楼建筑施工CAD图纸(含6张图纸)
- 现代徽派酒店建筑施工CAD图纸
- 徽派3层民居建筑施工CAD图纸
- 徽派3层民居建筑施工CAD图纸(31)
- 徽派马头墙详图纸
- 徽派建筑马头墙节点CAD详图纸
- 3层徽派办公楼建筑扩初CAD施工图纸(原创)
- 徽派风格售楼部装修CAD施工图纸
- 4层徽派风格商品住宅房设计施工CAD大样图
- 徽派风格别墅方案设计初设图纸_CAD
- 徽派风格高级别墅酒店规划设计方案
- 12层徽派风格中医院建筑施工CAD图纸(效果图纸)(门窗大样)
- 5层徽派江南风格住院部建筑初步初设大样图
- 徽派马头墙节点大样图纸(CAD)
- 2层徽派建筑住宅楼建筑方案设计CAD图纸
- 徽派3层砖混结构民居建筑施工图纸(高13米)
- 徽派四合院建筑设计施工图纸
- 农村徽派马头墙住宅楼建筑CAD施工图纸
- 农村徽派马头墙住宅楼建筑施工CAD图纸
- 3层砖混结构徽派建筑设计方案设计图纸
全部评论
评论网友评论仅友表达个人看法,并不表明本站同意其观点,不得发布违反法律法规的内容!
