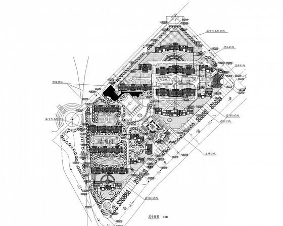
居住区规划建筑总图纸CAD图纸
- 发布时间:2022-08-17
- 评论次数:0
- 浏览次数:0
- 文件大小:0.41 MB
- 收藏次数:0
-
文件名称:
附件-995898588078960065050.rar
相关下载
- 居住区规划CAD图纸(总建筑面积)
- 居住区规划总平面_CAD
- 居住区修建性详细规划总平面_CAD
- 用地居住区规划建筑总平面CAD图纸(初设CAD图纸)
- 雅苑居住区规划建筑总CAD图纸(初设CAD图纸)
- 阳光居住区规划建筑总CAD图纸(初设CAD图纸)
- 小高层居住区规划建筑总CAD图纸(初设CAD图纸)
- 高层居住区规划建筑总CAD图纸(初设CAD图纸)
- 居住区规划建筑总CAD图纸(初设CAD图纸)
- 沿江居住区规划总CAD平面图(初设图纸)(建筑面积)
- 方形地块居住区规划方案总平面CAD图纸
- 方形地块居住区规划方案总平面CAD图纸
- 居住区规划建筑设计CAD图纸
- 居住区规划建筑CAD图纸(初设图)
- 居住区规划图纸
- 居住区规划CAD图纸
- 方形地块小区规划建筑总平面CAD图纸
- 方形地块小区规划建筑总CAD图纸
- 地块小区规划总平面
- 规划设计业务总流程
全部评论
评论网友评论仅友表达个人看法,并不表明本站同意其观点,不得发布违反法律法规的内容!
