您当前位置:首页 »  其他文档 » 其他资料 »  3层别墅建筑CAD图纸

3层别墅建筑CAD图纸

附件详情

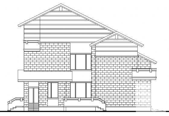
该资料为某三层别墅建筑方案图
工程建筑建筑设计结构形式为:砖混结构、层数为:3层、高度为:11.635米
这份参考资料包括各层建筑平面、立面、剖面图等,共9张图纸


以下是附件的其中一部分截图,共4张,您也可以 搜索 更多您想要的资源
  • 3层别墅建筑CAD图纸 - 1
    第 1 张图
  • 3层别墅建筑CAD图纸 - 2
    第 2 张图
  • 3层别墅建筑CAD图纸 - 3
    第 3 张图
  • 3层别墅建筑CAD图纸 - 4
    第 4 张图
以上是部分截图,请下载附件后查看完整高清内容
网站首页  | 
本站所有内容均由网友自主分享,仅供学习和参考,如有侵权内容或者违法行为,请及时联系站长删除。