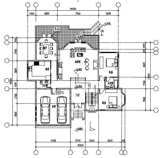
比较受欢迎的3层别墅建筑设计CAD施工图纸
- 发布时间:2022-08-16
- 评论次数:0
- 浏览次数:0
- 文件大小:1.17 MB
- 收藏次数:0
- 
								文件名称: 附件-995899598765085087078.rar 附件-995899598765085087078.rar
								相关下载
							
						- 比较受欢迎的学生宿舍建筑设计CAD图纸
- 比较受欢迎的3层独栋别墅建筑CAD图纸
- 比较简单的别墅建筑设计CAD图纸
- 比较精致的别墅建筑设计CAD图纸
- 比较不错的私人别墅建筑设计CAD图纸
- 比较简单的别墅建筑设计CAD图纸
- 比较受欢迎的2层联排住宅楼建筑施工CAD图纸
- 比较受欢迎的5层安置房建筑CAD图纸(初设图纸)
- 比较受欢迎的6层公寓住宅楼建筑CAD图纸
- 比较受欢迎的3层小型住宅楼建筑CAD图纸
- 比较受欢迎的6层住宅楼建筑扩初CAD图纸
- 比较受欢迎的7层住宅楼建筑CAD图纸
- 比较不错的别墅建筑CAD图纸
- 比较不错的别墅建筑CAD图纸
- 比较实用的别墅建筑CAD图纸
- 比较实用的别墅建筑CAD图纸
- 比较精美的乡村2层别墅建筑设计CAD图纸
- 比较小型的小别墅建筑设计CAD图纸
- 比较实用的别墅暖通CAD施工图纸
- 比较小巧的别墅建筑CAD施工图纸
全部评论
						
							评论网友评论仅友表达个人看法,并不表明本站同意其观点,不得发布违反法律法规的内容!
						
						
 
	              	 
	              	 
	              	