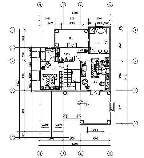
砖混结构3层山体别墅建筑方案设计CAD图纸
- 发布时间:2022-08-16
- 评论次数:0
- 浏览次数:0
- 文件大小:1 MB
- 收藏次数:0
- 
								文件名称: 附件-995899598955857759785.rar 附件-995899598955857759785.rar
								相关下载
							
						- 砌体结构3层山体别墅建筑方案设计CAD图纸(效果图纸)
- 砖混结构4层私家别墅建筑结构方案设计CAD图纸
- B型山体别墅建筑CAD图纸
- A型山体别墅建筑CAD图纸
- 山体别墅建筑CAD施工图纸
- 砖混结构2层欧式别墅建筑方案设计CAD图纸
- 国内砖混结构3层别墅建筑方案设计CAD施工图纸
- 砖混结构2层别墅建筑方案设计CAD施工图纸
- 砖混结构豪华3层别墅建筑方案设计CAD图纸
- 砖混结构3层别墅建筑方案设计CAD图纸
- 砖混结构3层别墅建筑方案设计CAD施工图纸
- 秀山花园3层别墅建筑方案设计CAD图纸(砖混结构)
- 3层欧式别墅建筑方案设计CAD图纸(砖混结构)
- 别墅小区总体设计建筑方案设计CAD图纸(砖混结构)
- 2层别墅建筑、给排水方案设计图纸(砖混结构)
- 2层欧式别墅砖混结构7.3米高建筑方案设计CAD图纸
- 砖混别墅建筑CAD图纸
- 砖混结构别墅施工建筑结构CAD图纸
- 砖混结构3层别墅建筑施工CAD图纸
- 砖混别墅建筑和结构CAD图纸
全部评论
						
							评论网友评论仅友表达个人看法,并不表明本站同意其观点,不得发布违反法律法规的内容!
						
						
 
	              	 
	              	 
	              	