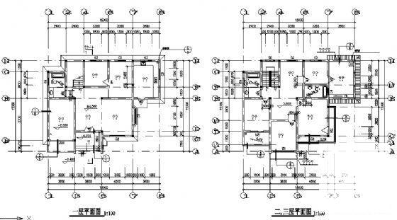
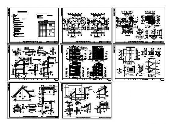
砌体结构3层独立式别墅建筑施工CAD图纸
- 发布时间:2022-08-15
- 评论次数:0
- 浏览次数:0
- 文件大小:0.45 MB
- 收藏次数:0
- 
								文件名称: 附件-995899568559785985595.rar 附件-995899568559785985595.rar
								相关下载
							
						- 3层独立式别墅建筑施工CAD图纸(标注详细)
- 砌体结构别墅建筑和结构CAD施工图纸
- 两层独立式别墅建筑设计方案设计CAD图纸
- 3层砌体结构别墅建筑施工CAD图纸
- 砌体结构2层别墅建筑施工CAD图纸
- 砌体结构2层别墅建筑CAD施工图纸
- 3层砌体结构私人别墅建筑施工CAD图纸
- 砌体结构3层别墅建筑CAD施工图纸
- 2层砌体结构别墅建筑CAD施工图纸
- 2层别墅建筑CAD施工图纸(砌体结构)
- O型别墅建筑施工CAD图纸(砌体结构)
- 古镇独立式住宅建筑测绘图纸
- 3层半独栋别墅建筑设计砌体结构
- 新农村2层砌体结构独栋别墅建筑方案
- 3层独立式别墅电气CAD施工图纸
- 3层独立式别墅电气设计CAD施工图纸.dwg
- 2层别墅建筑结构建筑施工CAD图纸(砌体结构)
- 3层独立式村民住宅楼建筑结构CAD施工图纸
- 砌体混合结构别墅结构CAD施工图纸(建筑CAD施工图纸)
- 砌体混合结构别墅结构施工图纸(建筑施工CAD图纸)
全部评论
						
							评论网友评论仅友表达个人看法,并不表明本站同意其观点,不得发布违反法律法规的内容!
						
						
 
	              	 
	              	 
	              	